The project for the refurbishment of the Parish of the Immaculate Conception of the Virgin Mary consists of two main phases: the first, built, is a general maintenance of the existing buildings with layout and energy efficiency improvements; the second phase, under construction, is a full re-design of the external church square.
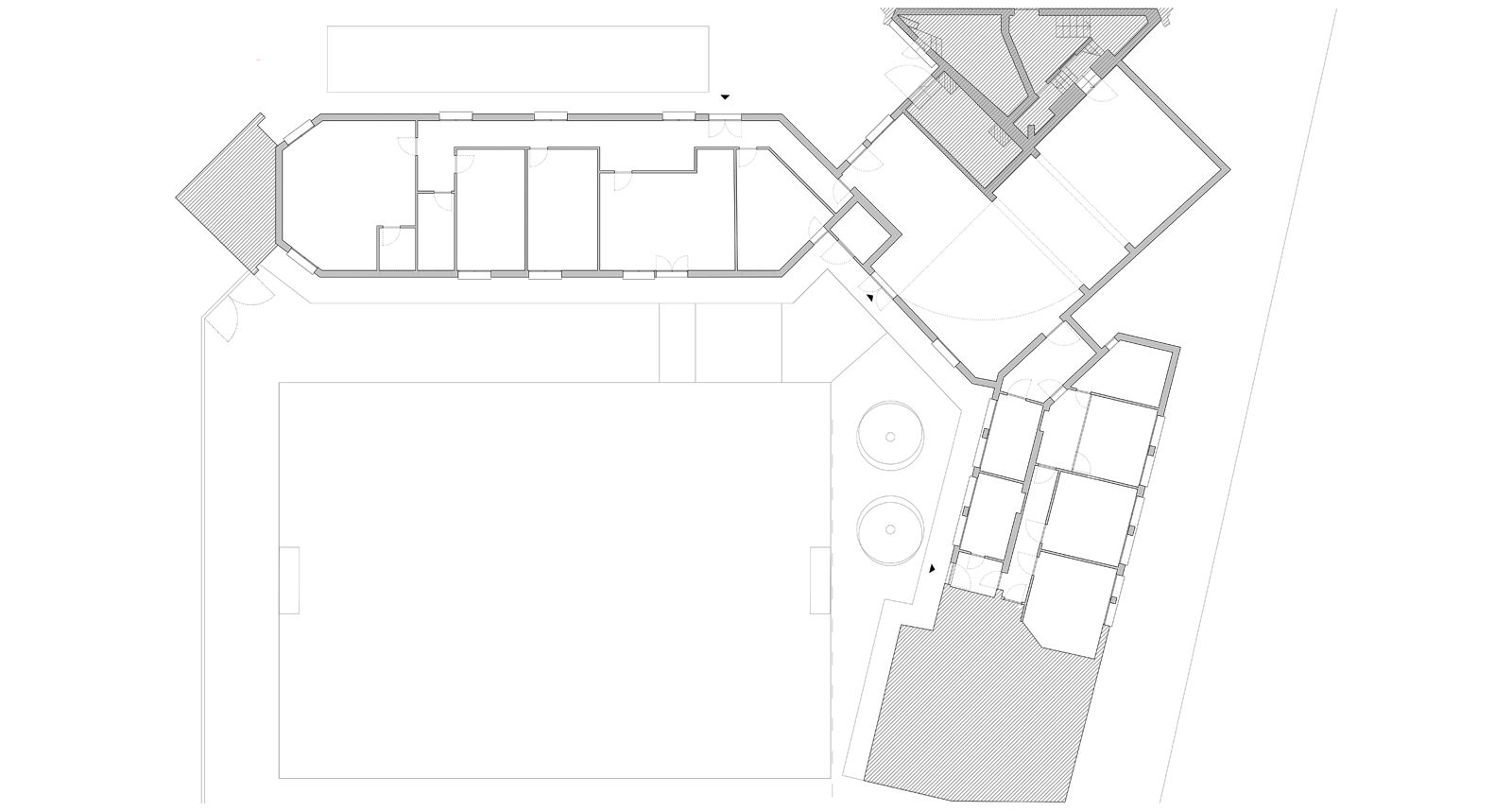
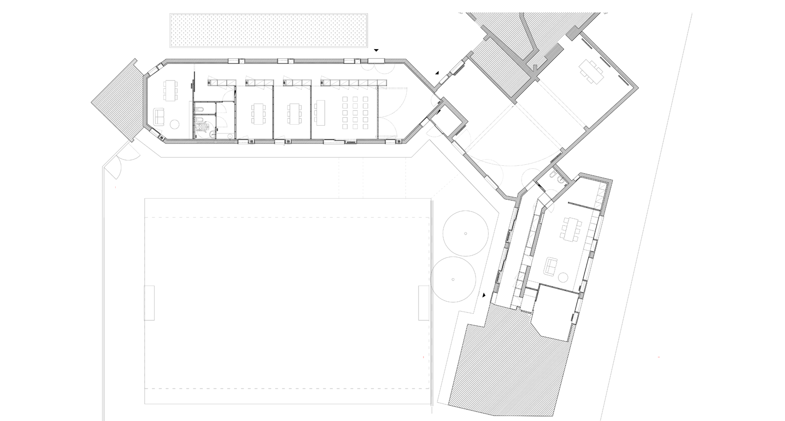
Next to the church, the parish consists of three buildings aggregated to form an “L” shaped complex that surrounds a courtyard owned by the Parish itself. The facades are in exposed brickwork. The project has been developed having the main users in mind, as, although the client is the Parish, the complex would have been used by the parish community and by two non-profit associations that operate in the field of social integration for people with disabilities and immigrants. The project consists of three main actions: first, the reorganization of the internal layout through the use of equipped walls; second, the opening of bigger entrances throughout the buildings with glazed doors that ensure full accessibility to the rooms from and to the courtyard; third, a general energy requalification.
The equipped walls do not just redefine the internal spaces. They act also as technological infrastructures, containing all the services and part of the radiators. All the rooms face the courtyard and are conceived to host flexible uses and activities by the community, whether they are frontal lessons or art/crafting workshops. The first room between the central building and the main one is equipped with openable full height walls that allow for greater flexibility of use of the space. All the glazed doors have been thoroughly designed and are bespoke for the project, hosting the remaining radiators. The improved efficiency of the building envelope has allowed to go from a consumption greater than 160 kWh / sqm per year to a consumption lower than 30 kWh / sqm per year.
Culture, Education
-
Copyright © 2018 | All rights reserved | Privacy Policy
Copyright © 2018 | All rights reserved | Privacy Policy
Copyright © 2018 | All rights reserved
Privacy Policy